Nieuw in verkoop:Moerdijkseweg 2, 4844 PD Terheijden - Foto
Topper Nieuw in verkoop
+45

Moerdijkseweg 2 4844 PD Terheijden € 375.000,- k.k.

  • Woonhuis
  • 5 kamers
  • 4 slaapkamers
  • 1 badkamers
  • Bouwjaar 1920
  • 384 m² perceeloppervlakte
  • 142 m² gebruiksoppervlakte
  • E Energielabel E

Beschrijving

In het buitengebied van Terheijden gelegen ruime geschakelde woning gebouwd in 1920 en ligt op een perceel van 384 m², heeft een woonoppervlakte van 142 m² met zowel aan de voorzijde als aan de achterzijde vrij en weids uitzicht op landbouwgrond.
De woning heeft een ruime woonkamer een open keuken en eethoek, een slaapkamer (19 m²) en badkamer en bijkeuken op de begane grond. Op de verdiepingsvloer zijn nog 3 slaapkamers. De woning verdient wel modernisering. Aan de voorzijde van de woning is voldoende parkeergelegenheid en de achtertuin is zuidoost gericht en biedt veel privacy. De woning is gunstig gelegen ten opzichte van o.m. Terheijden, Breda en Wagenberg. Daarnaast zijn de rijksweg A59, A16 en de A27 goed aan te rijden.

HEB JE INTERESSE IN DEZE WONING?
Aarzel niet langer en maak een afspraak voor een bezichtiging. Dit is een unieke kans om je droom waar te maken!
Bel voor een vrijblijvende afspraak 076-593 3134. We geven graag de mogelijkheden door.

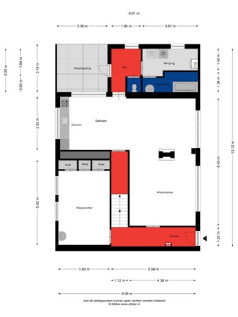
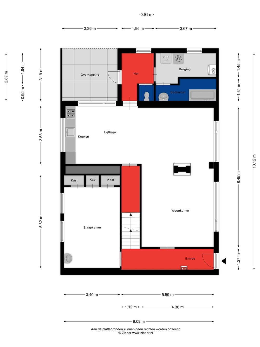
Indeling

Via de entree aan de voorzijde kom je in de hal met meterkast en toegang tot de L-vormige woonkamer, de slaapkamer en de trapopgang naar de verdiepingsvloer.
De woonkamer heeft een oppervlakte van 37 m² met een open haard in het midden van de kamer. De grote raampartijen zorgen voor veel lichtinval.
De open keuken is voorzien van een recht aanrechtblad, een rvs spoelbak, 4 pits gastoestel en een vaatwasser en koelkast. De eethoek verbind de open keuken met de woonkamer.
Vanuit de woonkamer/eethoek heb je toegang tot een hal. Via de hal kun je naar de achtertuin en naar de berging c.q. bijkeuken en het toilet. In deze berging is de opstelplaats voor de wasmachine en de CV installatie. Via de berging kom je in de badkamer welke is voorzien van een ligbad met douchegelegenheid en een wastafel.
Vanuit de eethoek heb je via een deur toegang tot een hal die uitkomt in de kelder.
De grote slaapkamer beneden (19 m²) heeft twee grote ramen, een vast kastenwand en een wastafel.

Eerste verdieping

Via de overloop heb je toegang tot drie slaapkamers.
Slaapkamer 1. aan de voorzijde van de woning heeft een vaste kastenwand.
Slaapkamer 2. Aan de achterzijde van de woning heeft een wastafel.
Slaapkamer 3. Heeft een wastafel en een vast kast.
In het plafond op de overloop is een luik naar een zolder. De zolder is niet beloopbaar.

Tuin

De zij- en achtertuin is omheind met een haag en biedt daardoor veel privacy. Aan de achterzijde heb je vrij uitzicht op landbouwgebied.
Aan de voorzijde van de woning is gelegenheid om je auto te parkeren.

Bijzonderheden

BIJZONDERHEDEN:
- Vrije ligging in het buitengebied
- Ruim woonoppervlakte (142 m²)
- Ruim perceel (384 m²)
- Woning is naar eigen smaak te moderniseren
- Op twee naastgelegen percelen (zie kadastrale kaart) rust een recht van eerste koop ten gunste van de eigenaar van de woning. Dit recht houdt in dat, indien en op het moment dat deze percelen in de toekomst te koop worden aangeboden, de eigenaar van de woning als eerste in de gelegenheid wordt gesteld om tot aankoop over te gaan.
Op één van deze percelen bevindt zich een loods/schuur. De stroomvoorziening van deze loods/schuur loopt via de meterkast van de woning. In het kader hiervan geldt als voorwaarde dat deze stroomvoorziening in stand blijft. Ter verrekening van het verbruik zal een tussenmeter worden geplaatst.
Het recht van eerste koop en de genoemde voorzieningen maken geen onderdeel uit van de huidige verkoop en geven geen aanspraak op directe of gelijktijdige aankoop van de percelen.

TERHEIJDEN EN OMGEVING
Terheijden is een charmant en gastvrij dorp waar rust, ruimte en gemak harmonieus samenkomen. Met alle dagelijkse voorzieningen zoals winkels, scholen, horeca en openbaar vervoer op loopafstand leef je hier in het hart van een hechte gemeenschap.
De groene omgeving nodigt uit tot wandel- en fietstochten langs de Mark, de historische Schans, het polderlandschap en de nabijgelegen bossen, terwijl de jachthaven met fietspontje extra recreatiemogelijkheden biedt. Bovendien beschikt Terheijden, zowel in het dorp zelf als in de nabije omgeving, over diverse binnen- en buitensportfaciliteiten, van teamsporten tot individuele sport- en wellnessmogelijkheden.
Dankzij de uitstekende verbindingen naar de A59, A16 en A27 én de korte afstand tot Breda en Oosterhout geniet je hier van het beste van twee werelden: landelijk en ontspannen wonen met de stad altijd binnen handbereik.
Kortom, Terheijden biedt alles voor wie zoekt naar een complete, levendige en fijne woonomgeving.

HEB JE INTERESSE IN DEZE WONING?
Aarzel niet langer en maak een afspraak voor een bezichtiging. Dit is een unieke kans om je droom waar te maken!
Bel voor een vrijblijvende afspraak 076-593 3134. We geven graag de mogelijkheden door.

ALGEMEEN
- Biedingen worden uitsluitend in behandeling genomen ná een bezichtiging.
- Bij een verkoop wordt als basis gebruik gemaakt van het model van de Vastgoed Nederland koopovereenkomst mede vastgesteld door de Nederlandse brancheorganisatie Voor makelaars, de NVM en Vereniging Eigen Huis.
- Een koopovereenkomst (tussen natuurlijke personen) komt uitsluitend tot stand onder de opschortende voorwaarde dat zowel verkoper als koper de koopovereenkomst ondertekenen. Partijen kunnen derhalve noch aan een mondelinge overeenkomst, noch aan een schriftelijke bevestiging daarvan, rechten ontlenen.
- In deze koopovereenkomst wordt standaard de verplichting tot het storten van een waarborgsom of het stellen van een bankgarantie door de koper ter grootte van 10% van de koopsom opgenomen.
- Afhankelijk van het bouwjaar wordt een koopovereenkomst, welke gehanteerd wordt door Reimus Makelaardij, standaard voorzien van een asbestclausule en ouderdomsclausule c.q. ‘as is where is’ clausule.
- Reimus Makelaardij wijst hiermee koper, in het kader van zijn onderzoeksplicht, op de mogelijkheid van het laten uitvoeren van o.m. een bouwkundige keuring en/of het inschakelen van een aankoopmakelaar of anderszins.
- Deze vrijblijvende informatie is door Reimus Makelaardij met de nodige zorgvuldigheid samengesteld. Alle opgegeven maten en oppervlakten zijn indicatief en kunnen desgewenst door koper worden gecontroleerd c.q. nagemeten.
- Door Reimus Makelaardij wordt geen enkele aansprakelijkheid aanvaard voor enige onvolledigheid, onjuistheid w.o. tekeningen, jaartallen, schaalaanduidingen oppervlaktematen of anderszins, dan wel de gevolgen daarvan.

Kaart

Kenmerken

Overdracht

Referentienummer
05706
Vraagprijs
€ 375.000,- k.k.
Inrichting
Niet gestoffeerd
Inrichting
Niet gemeubileerd
Status
Nieuw in verkoop
Aanvaarding
In overleg
Aangeboden sinds
Dinsdag 3 februari 2026

Bouw

Type object
Woonhuis, eengezinswoning, half vrijstaande woning
Soort bouw
Bestaande bouw
Bouwperiode
1920
Dakbedekking
Dakpannen
Type dak
Zadeldak
Isolatievormen
Gedeeltelijk dubbel glas

Oppervlaktes en inhoud

Perceeloppervlakte
384 m²
Woonoppervlakte
142 m²
Inhoud
503 m³
Oppervlakte gebouwgebonden buitenruimte
10,7 m²

Indeling

Aantal bouwlagen
2
Aantal kamers
5 (waarvan 4 slaapkamers)
Aantal badkamers
1

Locatie

Ligging
Buiten bebouwde kom
Nabij snelweg
Open ligging
Platteland
Vrij uitzicht

Tuin

Type
Achtertuin
Hoofdtuin
Ja
Oriëntering
Noord-oost
Heeft een achterom
Ja
Staat
Normaal
Tuin 2 - Type
Zijtuin
Tuin 2 - Hoofdtuin
Ja
Tuin 2 - Oriëntering
Zuidoost
Tuin 2 - Heeft een achterom
Ja
Tuin 2 - Staat
Normaal
Tuin 3 - Type
Voortuin
Tuin 3 - Oriëntering
Zuid-west
Tuin 3 - Staat
Normaal

Energieverbruik

Energielabel
E

CV ketel

CV ketel
CV Vaillant VHR
Warmtebron
Gas
Combiketel
Ja
Eigendom
Eigendom

Uitrusting

Aantal parkeerplaatsen
2
Warm water
CV-ketel
Verwarmingssysteem
Centrale verwarming
Badkamervoorzieningen
Ligbad
Wastafel
Heeft kabel-tv
Ja
Heeft een rookkanaal
Ja
Tuin aanwezig
Ja
Beschikt over een internetverbinding
Ja

Kadastrale gegevens

Kadastrale aanduiding
Terheijden I 2201
Perceeloppervlakte
384 m²
Omvang
Geheel perceel
Eigendomsituatie
Eigen grond

Brochure(s) en overige bijlagen

Moerdijkseweg 2, 4844 PD TERHEIJDEN (1) Download