Verkocht onder voorbehoud:Middenstip 17, 4844 HW Terheijden - Foto
Verkocht onder voorbehoud
+24

Middenstip 17 4844 HW Terheijden € 450.000,- k.k.

  • Appartement
  • 3 kamers
  • 2 slaapkamers
  • 1 badkamers
  • Bouwjaar 2023
  • 80 m² gebruiksoppervlakte
  • A+ Energielabel A+
Instapklaar modern en energiezuinig driekamerappartement met berging en eigen parkeerplaats.

Beschrijving

Instapklaar driekamerappartement met balkon, lift, berging en eigen parkeerplaats.
Dit moderne appartement bevindt zich op de derde verdieping van een goed verzorgd complex in een rustige en groene woonomgeving. Het duurzame appartement is gebouwd in 2023 en heeft een woonoppervlakte van ca. 80 m². Er zijn drie kamers waarvan twee slaapkamers en de woonkamer heeft een moderne open keuken. In de badkamer tref je een inloopdouche, wastafelmeubel en wandcloset aan. Het balkon ligt op het zuidwesten, waardoor je tot in de late uurtjes kan genieten van de zon. De berging is te vinden op de begane grond en je hebt een eigen parkeergelegenheid in de parkeergarage onder het complex. Het appartement is volledig geïsoleerd, voorzien van energielabel A+ en uitgevoerd met duurzame installaties en moderne materialen.

INTERESSE IN DIT APPARTEMENT?
Bel voor een vrijblijvende afspraak 06-51379713. We geven graag de mogelijkheden door.

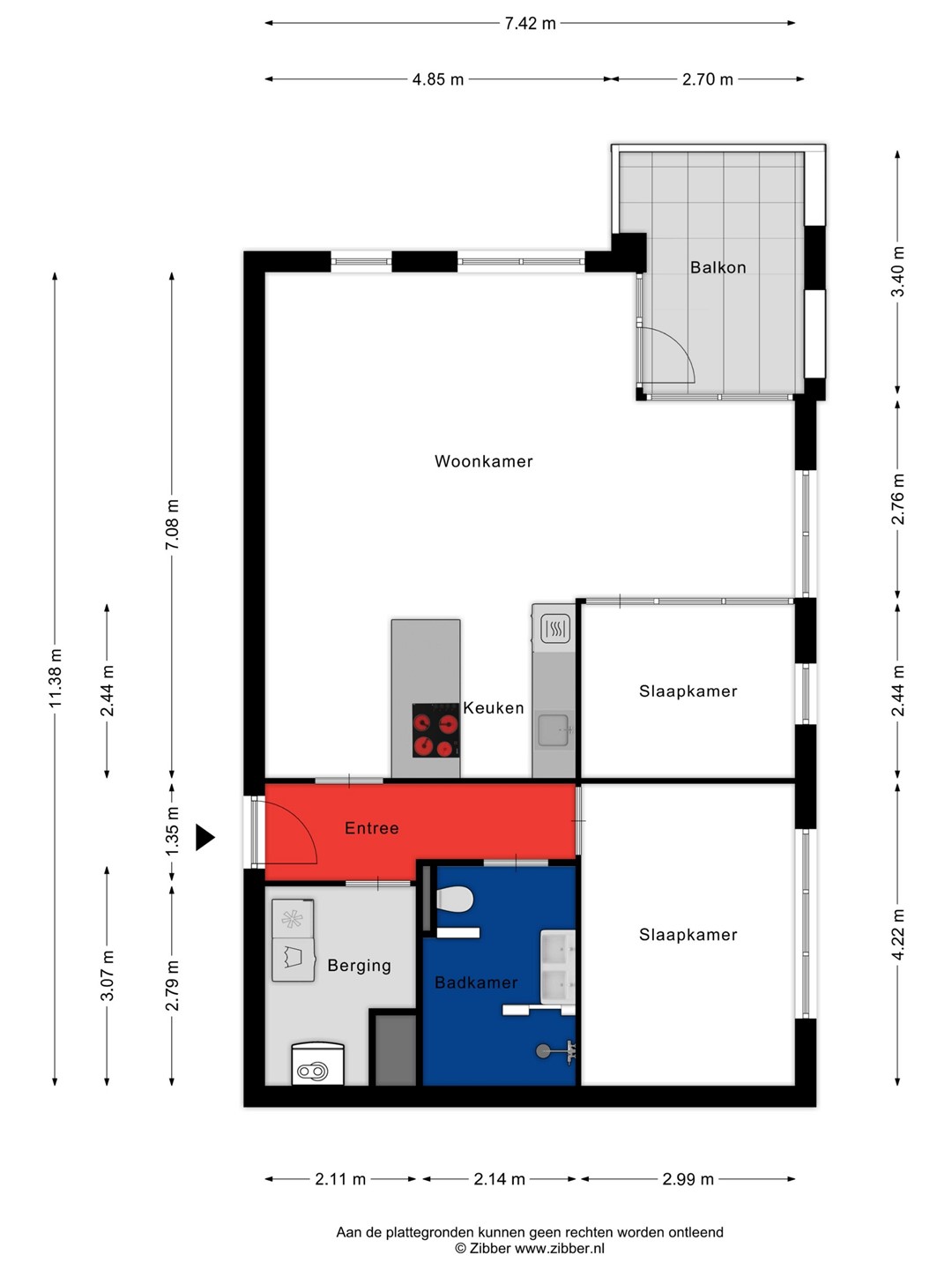
Indeling

ENTREE
De centrale entree is verzorgd en voorzien van bellentableau en intercom. Vanuit de hal zijn de lift en het trappenhuis bereikbaar.
WOONKAMER EN KEUKEN
Bij binnenkomst valt direct de open leefruimte op waarin keuken en woonkamer naadloos in elkaar overlopen. De ruimte is licht dankzij de grote raampartijen rondom en biedt voldoende plaats voor zowel een zithoek als een eettafel. De afwerking is rustig en verzorgd, met zwarte stalen accenten die het interieur een moderne uitstraling geven. Door het hele appartement ligt een visgraat PVC-vloer die zorgt voor een stijlvol en samenhangend geheel. De keuken bevindt zich direct bij binnenkomst en vormt een vanzelfsprekend onderdeel van de leefruimte. Centraal staat het kookeiland met bar, waardoor koken en wonen prettig samenkomen. In het eiland is een inductiekookplaat met geïntegreerde afzuiging verwerkt, wat bijdraagt aan het strakke lijnenspel. De keuken beschikt over veel kastruimte, diverse inbouwapparatuur en is uitgevoerd in materialen en kleuren die mooi op elkaar zijn afgestemd.
EXTRA KAMER / WERKRUIMTE OF SLAAPKAMER
Aansluitend aan de woonkamer ligt een extra kamer die momenteel in gebruik is als werkruimte. Deze is afgescheiden met een glazen wand in zwart stalen frame, waardoor het licht vrij door de ruimte blijft stromen en er toch een aparte kamer ontstaat. De ruimte kan desgewenst eenvoudig worden ingericht als tweede slaapkamer.
SLAAPKAMER
De slaapkamer is rustig gelegen en heeft een prettige lichtinval. De indeling is praktisch en biedt voldoende ruimte voor een tweepersoonsbed en kastruimte.
BADKAMER
De badkamer is modern en volledig betegeld en voorzien van een inloopdouche, een dubbel wastafelmeubel, handdoekenradiator en toilet. De afwerking is netjes en tijdloos.
BERGING / TECHNISCHE RUIMTE
In de hal bevindt zich een praktische berg- en installatieruimte met aansluitingen voor wasmachine en droger en extra plaats voor opslag of een vriezer. Hier is ook de ventilatie-installatie opgesteld.
COMFORT EN VOORZIENINGEN
De woning is voorzien van hoge plafonds, elektrische zonwering, vloerverwarming, triple glas en hoogwaardige isolatie. Dit zorgt voor een aangenaam woonklimaat door het hele jaar heen en een energiezuinige woning met label A+.
BALKON
Het balkon ligt op het westen en is bereikbaar vanuit de woonkamer. Hier kun je vanaf de late ochtend tot in de avond van de zon genieten.
BERGING EN PARKEERPLAATS
Op de begane grond beschikt het appartement over een eigen berging en in de parkeergarage is een privé parkeerplaats aanwezig.
LIGGING
De woning ligt in een nieuwe- en duurzame woonwijk in Terheijden in een rustige en groene omgeving. Winkels, scholen en recreatiemogelijkheden bevinden zich in de nabijheid en steden als Breda, Etten-Leur, Dordrecht en Oosterhout zijn snel bereikbaar.

Balkon

Het balkon ligt op het westen en is bereikbaar vanuit de woonkamer. Hier kun je vanaf de late ochtend tot in de avond van de zon genieten.

Bijzonderheden

KENMERKEN / HIGHLIGHTS – MIDDENSTIP 17, TERHEIJDEN
• Instapklaar driekamerappartement (bouwjaar 2023)
• Gelegen op de derde verdieping met lift
• Woonoppervlakte ca. 80 m²
• Drie kamers (woonkamer-ruime slaapkamer-kleinere slaap-/werkkamer)
• Lichte woonkamer met grote raampartijen
• Moderne open keuken met kookeiland en inbouwapparatuur
• Visgraat PVC-vloer door het hele appartement
• Vloerverwarming en elektrische zonwering (screens)
• Energielabel A+ en duurzame installaties
• Moderne badkamer met inloopdouche en dubbel wastafelmeubel
• Balkon op het zuidwesten (zon tot in de avond)
• Berging op de begane grond
• Privé parkeerplaats in parkeergarage
• Actieve VvE
• VvE bijdrage: € 222,- p/mnd.
• Volledig geïsoleerd en voorzien van triple glas
• Rustige ligging in groene, nieuwe woonwijk
• Goede bereikbaarheid richting Breda, Oosterhout, Dordrecht en Etten-Leur en de snelwegen A59, A16 en de A27.

INTERESSE IN DIT APPARTEMENT?
Bel voor een vrijblijvende afspraak 06-51379713. We geven graag de mogelijkheden door.

TERHEIJDEN EN OMGEVING
Terheijden is een charmant en gastvrij dorp waar rust, ruimte en gemak harmonieus samenkomen. Met alle dagelijkse voorzieningen zoals winkels, scholen, horeca en openbaar vervoer op loopafstand leef je hier in het hart van een hechte gemeenschap.
De groene omgeving nodigt uit tot wandel- en fietstochten langs de Mark, de historische Schans, het polderlandschap en de nabijgelegen bossen, terwijl de jachthaven met fietspontje extra recreatiemogelijkheden biedt. Bovendien beschikt Terheijden, zowel in het dorp zelf als in de nabije omgeving, over diverse binnen- en buitensportfaciliteiten, van teamsporten tot individuele sport- en wellnessmogelijkheden.
Dankzij de uitstekende verbindingen naar de A59, A16 en A27 én de korte afstand tot Breda en Oosterhout geniet je hier van het beste van twee werelden: landelijk en ontspannen wonen met de stad altijd binnen handbereik.
Kortom, Terheijden biedt alles voor wie zoekt naar een complete, levendige en fijne woonomgeving.

ALGEMEEN
- Biedingen worden uitsluitend in behandeling genomen ná een bezichtiging.
- Bij een verkoop wordt als basis gebruik gemaakt van het model van de Vastgoed Nederland koopovereenkomst mede vastgesteld door de Nederlandse brancheorganisatie Voor makelaars, de NVM en Vereniging Eigen Huis.
- Een koopovereenkomst (tussen natuurlijke personen) komt uitsluitend tot stand onder de opschortende voorwaarde dat zowel verkoper als koper de koopovereenkomst ondertekenen. Partijen kunnen derhalve noch aan een mondelinge overeenkomst, noch aan een schriftelijke bevestiging daarvan, rechten ontlenen.
- In deze koopovereenkomst wordt standaard de verplichting tot het storten van een waarborgsom of het stellen van een bankgarantie door de koper ter grootte van 10% van de koopsom opgenomen.
- Afhankelijk van het bouwjaar wordt een koopovereenkomst, welke gehanteerd wordt door Reimus Makelaardij, standaard voorzien van een asbestclausule en ouderdomsclausule c.q. ‘as is where is’ clausule.
- Reimus Makelaardij wijst hiermee koper, in het kader van zijn onderzoeksplicht, op de mogelijkheid van het laten uitvoeren van o.m. een bouwkundige keuring en/of het inschakelen van een aankoopmakelaar of anderszins.
- Deze vrijblijvende informatie is door Reimus Makelaardij met de nodige zorgvuldigheid samengesteld. Alle opgegeven maten en oppervlakten zijn indicatief en kunnen desgewenst door koper worden gecontroleerd c.q. nagemeten.
- Door Reimus Makelaardij wordt geen enkele aansprakelijkheid aanvaard voor enige onvolledigheid, onjuistheid w.o. tekeningen, jaartallen, schaalaanduidingen oppervlaktematen of anderszins, dan wel de gevolgen daarvan.

Kaart

Kenmerken

Overdracht

Referentienummer
05768
Vraagprijs
€ 450.000,- k.k.
Status
Verkocht onder voorbehoud
Aanvaarding
In overleg
Aangeboden sinds
Zondag 22 februari 2026
Laatste wijziging
Maandag 9 maart 2026

Bouw

Type object
Appartement, tussenverdieping
Woonlaag
3e woonlaag
Soort bouw
Bestaande bouw
Toegankelijkheid
Mindervaliden
Senioren
Bouwperiode
2023
Dakbedekking
Bitumen
Type dak
Platdak
Isolatievormen
Dubbel glas
HR-glas
Muurisolatie
Spouwmuren
Volledig geïsoleerd

Oppervlaktes en inhoud

Woonoppervlakte
79,6 m²
Inhoud
263 m³
Oppervlakte externe bergruimte
4,9 m²
Oppervlakte gebouwgebonden buitenruimte
8,2 m²

Indeling

Aantal bouwlagen
1
Aantal kamers
3 (waarvan 2 slaapkamers)
Aantal badkamers
1

Locatie

Ligging
Aan rustige weg
In woonwijk

Energieverbruik

Energielabel
A+

Uitrusting

Aantal parkeerplaatsen
1
Aantal overdekte parkeerplaatsen
1
Warm water
Stadsverwarming
Verwarmingssysteem
Stadsverwarming
Vloerverwarming
Warmterecuperatiesysteem
Ventilatie methode
Mechanische ventilatie
Badkamervoorzieningen
Dubbele wastafel
Inloopdouche
Toilet
Vloerverwarming
Wastafelmeubel
Parkeergelegenheid
Parkeerkelder
Heeft een balkon
Ja
Heeft kabel-tv
Ja
Heeft een lift
Ja
Glasvezelaansluiting aanwezig
Ja
Telefoonaansluiting aanwezig
Ja
Beschikt over een internetverbinding
Ja
Heeft zonwering
Ja
Heeft ventilatie
Ja

Vereniging van Eigenaren

Ingeschreven bij de KvK
Ja
Jaarlijkse vergadering
Ja
Periodieke bijdrage
Ja
Reservefonds
Ja
Meer jaren onderhoudsplan
Ja
Opstal verzekering
Ja

Kadastrale gegevens

Kadastrale aanduiding
Drimmelen I 2060A
Perceeloppervlakte
822 m²
Omvang
Appartementsrecht of complex
Eigendomsituatie
Zie akte
Kadastrale aanduiding
Terheijden I 2060A
Omvang
Appartementsrecht of complex
Eigendomsituatie
Zie akte
Kadastrale aanduiding
Terheijden I 2060A
Perceeloppervlakte
822 m²
Omvang
Appartementsrecht of complex
Eigendomsituatie
Zie akte

Media

Video

Plattegronden

Brochure(s) en overige bijlagen

Middenstip 17, 4844 HW TERHEIJDEN (1) Download