Verkocht:Markkant 1, 4844 BB Terheijden - Foto
Verkocht
+44

Markkant 1 4844 BB Terheijden

  • Woonhuis
  • 4 kamers
  • 3 slaapkamers
  • 1 badkamers
  • Bouwjaar 1965
  • 207 m² perceeloppervlakte
  • 120 m² gebruiksoppervlakte
  • C Energielabel C
Uitgebouwde, gemoderniseerde en instapklare hoekwoning waar alles tot in de puntjes is afgewerkt!

Beschrijving

In deze uitgebouwde, gemoderniseerde en instapklare hoekwoning waar alles tot in de puntjes is afgewerkt en waar niks aan toeval is overgelaten voel je je meteen thuis. Gelegen nabij rivier De Mark biedt deze woning een perfecte mix van comfort en sfeer.
Bij binnenkomst tref je een ruime hal met een trapopgang naar de eerste verdieping, een net toilet en de meterkast. De lichte woonkamer met grote raampartijen, openslaande tuindeuren en een prachtige houten vloer heeft een fijne lichtinval. De open keuken sluit naadloos aan op de eetruimte waardoor je vanuit de keuken altijd in contact staat met de eetkamer en de tuin. Een deur biedt toegang tot de achter-en zijtuin.
Op de eerste verdieping vind je twee ruime slaapkamers, een moderne badkamer en een fijne walk-in closet. De voorzolder is keurig afgewerkt en beschikt over aansluitingen voor wasmachine en droger.
Middels een deur bereik je een grote, perfect afgewerkte 3e zolderslaapkamer met een dakkapel en een groot Velux dakraam. Indien gewenst kunnen hier 2 (slaap)kamers van gemaakt worden, simpelweg door het plaatsen van een tussenwand.
De fraai aangelegde tuin met een gunstige ligging en een fijne overkapping nodigt uit tot ontspannen. Deze woning is een ideale woning voor wie direct wil genieten van een sfeervol en luxe thuis!
KORTOM: Een instapklare, gemoderniseerd en uitgebouwde hoekwoning nabij rivier De Mark waar je op slag verliefd op kunt worden!

HEB JE INTERESSE IN DEZE WONING?
Aarzel niet langer en maak een afspraak voor een bezichtiging. Dit is een unieke kans om je droom waar te maken!
Telefoonnummer: 06-51379713

Indeling

ENTREE EN HAL
Bij binnenkomst zie je meteen: dit huis is met zorg afgewerkt.
De hal is licht en heeft een nette eiken parketvloer.
Hier vind je het toilet, de trapkast met meterkast, de trap naar boven (met een mooie traprenovatie) en een deur naar de woonkamer.
WOONKAMER
De woonkamer is uitgebouwd waardoor er ruimte is voor zowel een royale, gezellige zithoek als een flinke eettafel waar met veel personen gezellig getafeld kan worden. De houten vloer en prettige lichtinval zorgen direct voor een fijne sfeer. Twee tuindeuren geven toegang tot de achtertuin.
OPEN KEUKEN:
De open keuken is praktisch ingedeeld, heeft lekker veel werkruimte en is van alle gemakken voorzien. Aanwezig zijn composieten aanrechtblad, 4-pits inductie kookplaat, afzuigkap (Zanussi), hete lucht oven (Whirlpool), koel-vriescombinatie, vaatwasser (AEG), close in boiler (10 liter) en meerdere lades en onder- & bovenkastjes. Ook via de keuken kom je in de tuin.

Eerste verdieping

OVERLOOP
De trap (met traprenovatie) brengt je naar de overloop. Hier zijn de deuren naar twee slaapkamers, de badkamer en de walk-in closet.
De hele verdieping heeft een laminaatvloer.
SLAAPKAMERS
– Slaapkamer 1 ligt aan de achterkant van het huis
– Slaapkamer 2 aan de voorkant
Beide kamers zijn ruim en netjes gestukt.
BADKAMER
De badkamer ligt aan de achterzijde. Volledig betegeld en modern afgewerkt. Met vloerverwarming, inloopdouche, wandcloset, wastafelmeubel, handdoekenradiator en een mat glas raam met ventilatierooster.
WALK-IN CLOSET
Aan de voorzijde is een met een deur af te sluiten handige walk-in closet.

Tweede verdieping

VOORZOLDER
Via een vaste trap met een nette traprenovatie kom je op de voorzolder.
Hier is een dakraam aan de voor- én achterkant van het huis.
De wasmachine en droger staan netjes weggewerkt in een kast.
Er is ook een extra wastafel.
Achter de knieschotten zit handige bergruimte.
ZOLDERSLAAPKAMER
Achter een schuifdeur ligt een ruime en strak afgewerkte zolderslaapkamer.
Aan de achterkant zit een dakkapel, aan de voorkant een groot Velux dakraam.
De vloer is afgewerkt met klik marmoleum (2025).

Tuin

Er is een voor- én achtertuin. De achtertuin is groen en gezellig. Hij ligt op het oosten en is ongeveer 8 bij 7 meter. Achterin staat een houten schuurtje met een fijne overkapping. Ideaal voor lange zomeravonden.
Via de zijkant kom je makkelijk naar de voorkant van het huis.
De woning ligt in een kindvriendelijke buurt. De straat is rustig en er is parkeergelegenheid. Alleen bestemmingsverkeer komt hier.

Bijzonderheden

HIGHLIGHTS:
• Instapklaar en perfect onderhouden, gemoderniseerde hoekwoning.
• Veel praktische en goed doordachte ruimtes.
• Energie zuinig en duurzaam wonen, de woning is volledig geïsoleerd.
• Uitgebouwde, lichte woonkamer met houten vloer
• Open keuken met complete inbouwapparatuur
• Twee ruime slaapkamers + walk-in closet
• Grote zolderslaapkamer met dakkapel en dakraam
• Nette voorzolder met wasruimte en extra bergruimte
• Moderne badkamer met inloopdouche en vloerverwarming
• Fraaie traprenovaties
• Groene achtertuin met overkapping en berging
• Rustige straat met alleen bestemmingsverkeer
• Kindvriendelijke buurt, dichtbij De Mark
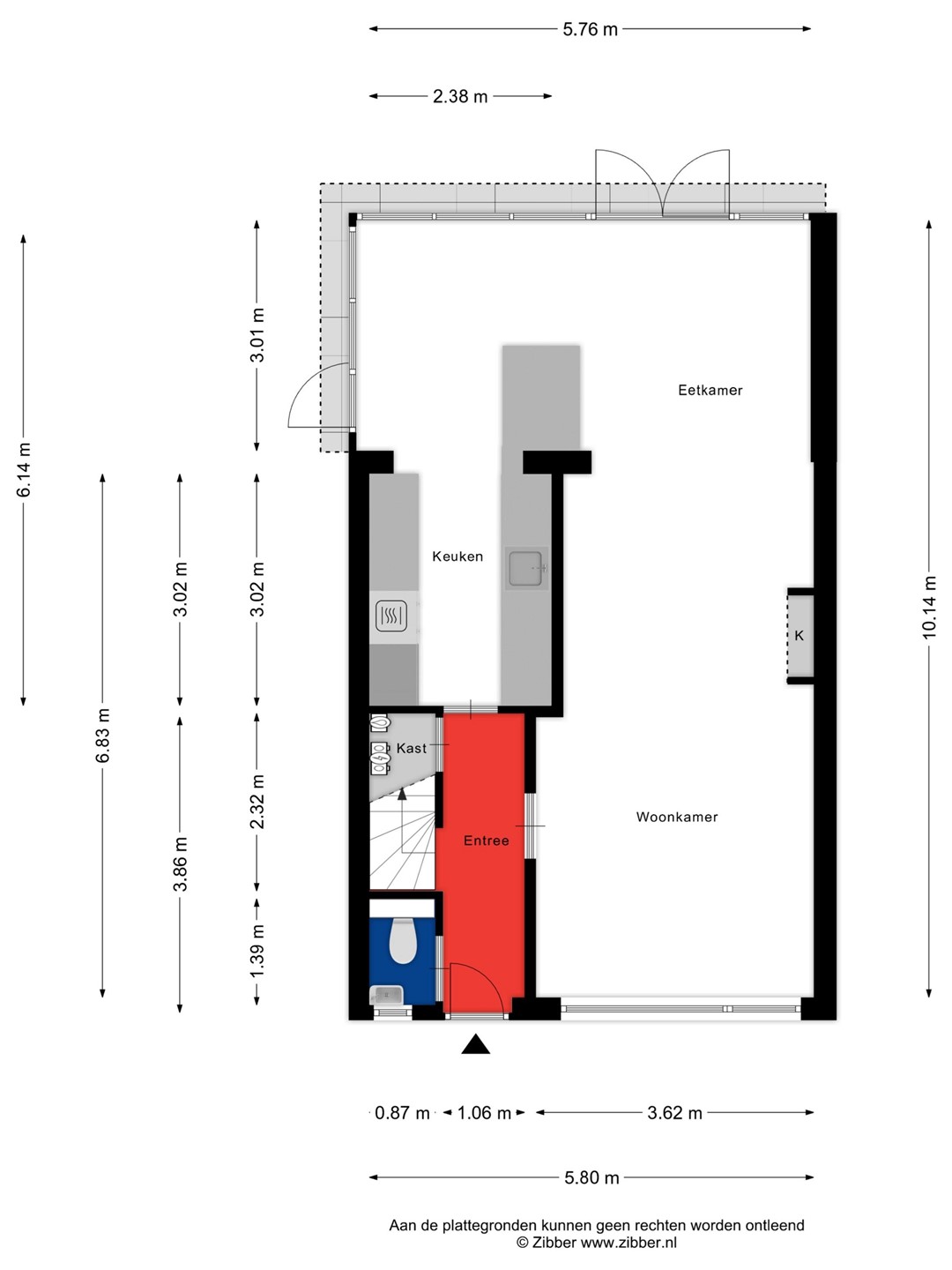
## de afmetingen van de kamers/ruimten zijn op de plattegronden terug te vinden.

TERHEIJDEN EN OMGEVING
Naast deze bijzonderheden en fantastische ligging van deze gezellige woning vind je in Terheijden, voor zowel jong als oud, goede winkel- en verzorgingsfaciliteiten, drie basisscholen, het openlucht zwembad, horecagelegenheden, een jachthaven (met fietspontje), meerdere sport- en recreatiemogelijkheden en wandel- en fietsmogelijkheden langs de Mark, de Schans, door het polderlandschap of de nabij gelegen bossen.
Bovendien zijn zowel de bourgondische stad Breda als Oosterhout binnen ‘handbereik’, waardoor je kunt genieten van het beste van twee werelden: rustig en comfortabel wonen in een landelijke omgeving met alle gemakken van de stad binnen handbereik. Wil je het verderop zoeken dan liggen de A59, A16 en de A27 slecht op enkele autominuten afstand van de woning.

ALGEMEEN
- Bij een verkoop wordt als basis gebruik gemaakt van het model van de VBO koopovereenkomst, vastgesteld door de Nederlandse brancheorganisatie voor makelaars, de NVM en Vereniging Eigen Huis.
- In deze koopovereenkomst wordt standaard de verplichting tot het storten van een waarborgsom of het stellen van een bankgarantie door de koper ter grootte van 10% van de koopsom opgenomen.
- Een koopovereenkomst komt uitsluitend tot stand onder de opschortende voorwaarde dat zowel verkoper als koper de koopovereenkomst ondertekenen. Partijen kunnen derhalve noch aan een mondelinge overeenkomst, noch aan een schriftelijke bevestiging daarvan, rechten ontlenen.
- Deze vrijblijvende informatie is door Reimus Makelaardij met de nodige zorgvuldigheid samengesteld. Alle opgegeven maten en oppervlakten zijn indicatief en kunnen desgewenst door koper worden gecontroleerd.
- Afhankelijk van het bouwjaar wordt een koopovereenkomst, welke gehanteerd wordt door Reimus Makelaardij, standaard voorzien van een asbestclausule en ouderdomsclausule c.q. ‘as is where is’ clausule.
- Reimus Makelaardij wijst hiermee koper, in het kader van zijn onderzoeksplicht, op de mogelijkheid van het laten uitvoeren van een bouwkundige keuring.
- Door Reimus Makelaardij wordt geen enkele aansprakelijkheid aanvaard voor enige onvolledigheid, onjuistheid w.o. tekeningen, jaartallen, schaalaanduidingen oppervlaktematen of anderszins, dan wel de gevolgen daarvan.

HEB JE INTERESSE IN DEZE WONING?
Aarzel niet langer en maak een afspraak voor een bezichtiging. Dit is een unieke kans om je droom waar te maken!
Bel voor een vrijblijvende afspraak 076-593 3134. We geven graag de mogelijkheden door.

Kaart

Kenmerken

Overdracht

Referentienummer
05693
Vraagprijs
€ 420.000,- k.k.
Status
Verkocht
Aanvaarding
In overleg
Aangeboden sinds
Woensdag 7 mei 2025
Laatste wijziging
Zaterdag 19 juli 2025

Bouw

Type object
Woonhuis, eengezinswoning, hoekwoning
Soort bouw
Bestaande bouw
Bouwperiode
1965
Isolatievormen
Dakisolatie
Driedubbel glas
HR-glas
Muurisolatie
Spouwmuren
Vloerisolatie

Oppervlaktes en inhoud

Perceeloppervlakte
207 m²
Woonoppervlakte
120 m²
Inhoud
424 m³
Oppervlakte externe bergruimte
5 m²

Indeling

Aantal bouwlagen
3
Aantal kamers
4 (waarvan 3 slaapkamers)
Aantal badkamers
1 (en 1 apart toilet)

Locatie

Ligging
Aan rustige weg
Dichtbij openbaar vervoer
In woonwijk
Nabij school
Nabij snelweg

Tuin

Type
Achtertuin
Hoofdtuin
Ja
Oriëntering
Oosten
Heeft een achterom
Ja
Staat
Goed onderhouden
Tuin 2 - Type
Voortuin
Tuin 2 - Oriëntering
West
Tuin 2 - Staat
Goed onderhouden

Energieverbruik

Energielabel
C

CV ketel

CV ketel
HR combiketel
Warmtebron
Gas
Bouwjaar
2015
Combiketel
Ja
Eigendom
Eigendom

Uitrusting

Warm water
CV-ketel
Verwarmingssysteem
Centrale verwarming
Vloerverwarming (gedeeltelijk)
Ventilatie methode
Natuurlijke ventilatie
Keukenvoorzieningen
Inbouwapparatuur
Badkamervoorzieningen
Inloopdouche
Toilet
Vloerverwarming
Wastafelmeubel
Heeft kabel-tv
Ja
Glasvezelaansluiting aanwezig
Ja
Tuin aanwezig
Ja
Telefoonaansluiting aanwezig
Ja
Beschikt over een internetverbinding
Ja
Heeft een dakraam
Ja

Kadastrale gegevens

Kadastrale aanduiding
Terheijden G 1926
Perceeloppervlakte
207 m²
Eigendomsituatie
Eigen grond

Brochure(s) en overige bijlagen

BROCHURE Markkant 1 Terheijden.pdf Download