Verkocht onder voorbehoud:Koningsveld 29, 4844 TR Terheijden - Foto
Verkocht onder voorbehoud
+58

Koningsveld 29 4844 TR Terheijden € 835.000,- k.k.

  • Woonhuis
  • 5 kamers
  • 4 slaapkamers
  • 1 badkamers
  • Bouwjaar 2004
  • 564 m² perceeloppervlakte
  • 184 m² gebruiksoppervlakte
  • B Energielabel B
Fantastische instapklare 2-onder-1-kapwoning, 3 tot 4 slaapkamers, garage en diepe zonnige tuin en tuinhuis.

Beschrijving

Welkom bij Koningsveld 29 in Terheijden.
Deze woning ligt in een straat met uitstraling en valt direct op door de prachtige gele stenen. Ze geven het huis een warme en vriendelijke aanblik. Dit is een woning die je meteen herkent en die uitnodigt om binnen te kijken.
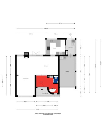
De woning ligt op een perceel van ca. 564 m² en heeft een woonoppervlakte van ca. 184 m². Binnen vind je een lichte woonkamer in L-vorm, een grote keuken, een praktische bijkeuken en een inpandige garage. Er zijn drie ruime slaapkamers en een grote zolder waar eenvoudig nog twee extra kamers kunnen worden gemaakt. Daarmee is dit huis perfect voor gezinnen of mensen die graag ruimte zoeken voor werk of hobby.
Buiten geniet je van een royale achtertuin op het zuiden, prachtig aangelegd onder architectuur en met volop privacy. Ook de voortuin is fraai en sluit mooi aan bij de uitstraling van de woning.
Dit huis is luxe afgewerkt met duurzame materialen, tot in detail verzorgd en volledig instapklaar. Hier is niets aan het toeval overgelaten.

Heb je interesse en wil je een bezichtiging? Bel ons 06-51379713 en we geven je de mogelijkheden door.

Indeling

ENTREE
De entree voelt netjes en praktisch. Hier vind je de meterkast met waterontharder en het toilet. Het toilet is volledig betegeld en voorzien van een hangcloset, planchet en hoekwastafel.
HAL
De hal heeft meerdere hoge ramen die zorgen voor lichtinval. De stevige hardhouten trap leidt naar de eerste verdieping. Via een glazen stalen deur, met aan weerszijden ramen, stap je de woonkamer in. Dit geeft direct een lichte en open indruk.
WOONKAMER
De woonkamer is ruim en in een L-vorm. De vloer is afgewerkt met grote PVC-tegels die doorlopen vanuit de hal. Grote raampartijen en openslaande tuindeuren zorgen voor veel licht en een fijne verbinding met de tuin. Er is plaats voor een royale eethoek en meerdere zithoeken. De woonkamer heeft een sfeervolle gashaard (2022).
KEUKEN
De open keuken sluit naadloos aan bij de woonkamer. Toegang via een deur met zwart stalen frame en rookglas.
De keuken heeft een hoekopstelling met veel werk- en bergruimte. Voorzien van een inductiekookplaat met geïntegreerde afzuiging, combi-oven/magnetron, stoomoven, grote koelkast en diepvries. Er is een aansluiting voor een vaatwasser. Het hoekraam geeft mooi zicht op de tuin.
BIJKEUKEN
In de bijkeuken staan maatwerk kasten, met de wasmachine en droger op hoogte ingebouwd. Hier ligt een tegelvloer. Er is een aparte ruimte voor de ketel (2019, onderhoudscontract aanwezig). Vanuit de bijkeuken is er toegang tot de garage en de tuin.

INPANDIGE GARAGE
De garage is inpandig bereikbaar en ruim genoeg voor een auto. Er is een elektrische sectionaaldeur met afstandsbediening. Boven de garage én boven de bijkeuken is een ruime berging bereikbaar via een losse trap.

Eerste verdieping

De ruime overloop geeft toegang tot drie slaapkamers, de badkamer en een dichte deur met daarachter de vaste trap naar de tweede verdieping.
- SLAAPKAMER 1 (achterzijde): ruime kamer met zicht op de achtertuin.
- SLAAPKAMER 2 (achterzijde): zeer ruime kamer met extra bergruimte onder de trap naar de zolder, bereikbaar via een deur. Ook uitzicht op de tuin.
- SLAAPKAMER 3 (voorzijde): groot, met een breed raam en vrij uitzicht over de straat met laagbouw (bungalows). Momenteel in gebruik als werkkamer.
Vanaf de overloop is er toegang tot een overdekt balkon aan de voorzijde. Alle wanden zijn strak gestuukt en de verdieping is voorzien van vloerbedekking.
BADKAMER
De badkamer is modern betegeld en compleet uitgerust. Er is een ruime inloopdouche met regendouche, een enkele wastafel, een radiator en een tweede toilet. In de wand zit een ingebouwde Sun shower dat zorgt voor extra comfort.

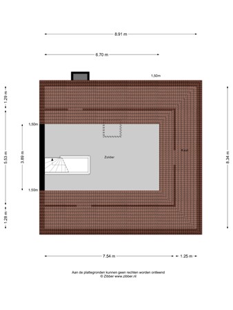
Tweede verdieping

Via een vaste houten trap bereik je de zolder. Deze verdieping is groot en nu in gebruik als bergzolder. Er ligt vloerbedekking en er is een groot Velux dakraam. Rondom zijn knieschotten met bergruimte. Ook staat hier een infraroodsauna.
De ruimte biedt mogelijkheden om twee extra slaapkamers te realiseren.

Tuin

ACHTERTUIN
De achtertuin is prachtig onder architectuur aangelegd en ligt op het zuiden. Achter de tuin ligt gemeentegrond met veel groen en bomen, waardoor je volop privacy en vrijheid ervaart.

Er zijn verschillende terrassen en zitplekken, zowel in de zon als in de schaduw. Achter in de tuin is een groot terras met vier platanen die natuurlijke schaduw geven. Voor in de tuin staan twee krentenboompjes, die ’s avonds sfeervol verlicht zijn, alsook de vier platanen.

De tuin heeft een beregeningsinstallatie onder het gazon, een buitenkraan en meerdere elektrapunten. Blikvanger is de tuinkamer met glazen wanden: een fijne plek om het hele jaar door buiten te genieten. Naast de tuinkamer is een berging voor tuinmeubels.

VOORTUIN
Ook de voortuin is onder architectuur aangelegd. Netjes onderhouden en passend bij de uitstraling van het huis. Via een poort en zijpad is de achtertuin bereikbaar.

Bijzonderheden

HIGHLIGHTS
- Perceel ca. 564 m² | Woonoppervlakte ca. 184 m²
- Prachtige gevel in warme gele steen, met uitstraling
- Instapklaar en luxe afgewerkt met duurzame materialen
- 3 slaapkamers, mogelijkheid tot 5
- Lichte woonkamer in L-vorm met sfeervolle gashaard
- Grote keuken en praktische bijkeuken
- Moderne badkamer met inloopdouche, enkele wastafel en tweede toilet
- Inpandige garage en extra bergruimte
- Royale tuin op het zuiden, onder architectuur aangelegd
- Tuinkamer van glas en sfeervolle verlichting in de tuin
- Rustige, ruim opgezette omgeving met veel privacy

LIGGING
De woning ligt in een rustige straat, ruim van opzet en met veel privacy. Voor de woning kijk je uit op laagbouw, wat een vrij en ruimtelijk gevoel geeft. De omgeving is groen, rustig en veilig.
TERHEIJDEN EN OMGEVING
Naast deze bijzonderheden en fantastische ligging van deze gezellige woning vind je in Terheijden, voor zowel jong als oud, goede winkel- en verzorgingsfaciliteiten, drie basisscholen, het openlucht zwembad, horecagelegenheden, een jachthaven (met fietspontje), meerdere sport- en recreatiemogelijkheden en wandel- en fietsmogelijkheden langs de Mark, de Schans, door het polderlandschap of de nabij gelegen bossen.
Bovendien zijn zowel de bourgondische stad Breda als Oosterhout binnen ‘handbereik’, waardoor je kunt genieten van het beste van twee werelden: rustig en comfortabel wonen in een landelijke omgeving met alle gemakken van de stad binnen handbereik. Wil je het verderop zoeken dan liggen de A59, A16 en de A27 slecht op enkele autominuten afstand van de woning.

HEB JE INTERESSE IN DEZE WONING?
Aarzel niet langer en maak een afspraak voor een bezichtiging. Dit is een unieke kans om je droom waar te maken!
Bel voor een vrijblijvende afspraak 00-51379713. We geven graag de mogelijkheden door.

ALGEMEEN
- Bij een verkoop wordt als basis gebruik gemaakt van het model van de Vastgoed Nederland koopovereenkomst mede vastgesteld door de Nederlandse brancheorganisatie Voor makelaars, de NVM en Vereniging Eigen Huis.
- In deze koopovereenkomst wordt standaard de verplichting tot het storten van een waarborgsom of het stellen van een bankgarantie door de koper ter grootte van 10% van de koopsom opgenomen.
- Een koopovereenkomst komt uitsluitend tot stand onder de opschortende voorwaarde dat zowel verkoper als koper de koopovereenkomst ondertekenen. Partijen kunnen derhalve noch aan een mondelinge overeenkomst, noch aan een schriftelijke bevestiging daarvan, rechten ontlenen.
- Deze vrijblijvende informatie is door Reimus Makelaardij met de nodige zorgvuldigheid samengesteld. Alle opgegeven maten en oppervlakten zijn indicatief en kunnen desgewenst door koper worden gecontroleerd.
- Afhankelijk van het bouwjaar wordt een koopovereenkomst, welke gehanteerd wordt door Reimus Makelaardij, standaard voorzien van een asbestclausule en ouderdomsclausule c.q. ‘as is where is’ clausule.
- Reimus Makelaardij wijst hiermee koper, in het kader van zijn onderzoeksplicht, op de mogelijkheid van het laten uitvoeren van een bouwkundige keuring en/of het inschakelen van een aankoopmakelaar.
- Door Reimus Makelaardij wordt geen enkele aansprakelijkheid aanvaard voor enige onvolledigheid, onjuistheid w.o. tekeningen, jaartallen, schaalaanduidingen oppervlaktematen of anderszins, dan wel de gevolgen daarvan.

Kaart

Kenmerken

Overdracht

Referentienummer
05733
Vraagprijs
€ 835.000,- k.k.
Status
Verkocht onder voorbehoud
Aanvaarding
In overleg
Aangeboden sinds
Zondag 14 september 2025
Laatste wijziging
Donderdag 13 november 2025

Bouw

Type object
Woonhuis, eengezinswoning, twee onder een kap woning
Soort bouw
Bestaande bouw
Bouwperiode
2004
Dakbedekking
Dakpannen
Type dak
Zadeldak
Isolatievormen
Ankerloze spouwmuren
Dakisolatie
Dubbel glas
HR-glas
Vloerisolatie
Volledig geïsoleerd

Oppervlaktes en inhoud

Perceeloppervlakte
564 m²
Woonoppervlakte
184 m²
Inhoud
726 m³
Oppervlakte overige inpandige ruimten
21 m²
Oppervlakte externe bergruimte
28 m²
Oppervlakte gebouwgebonden buitenruimte
11 m²

Indeling

Aantal bouwlagen
3
Aantal kamers
5 (waarvan 4 slaapkamers)
Aantal badkamers
1 (en 1 apart toilet)

Locatie

Ligging
Aan rustige weg
Dichtbij openbaar vervoer
In woonwijk
Nabij school
Nabij snelweg

Tuin

Type
Achtertuin
Hoofdtuin
Ja
Oriëntering
Zuiden
Heeft een achterom
Ja
Staat
Aangelegd onder architectuur
Tuin 2 - Type
Achtertuin
Tuin 2 - Oriëntering
Noorden
Tuin 2 - Staat
Aangelegd onder architectuur

Energieverbruik

Energielabel
B

CV ketel

CV ketel
Remeha HR Combiketel
Warmtebron
Gas
Bouwjaar
2019
Combiketel
Ja
Eigendom
Eigendom

Uitrusting

Aantal parkeerplaatsen
2
Aantal overdekte parkeerplaatsen
1
Warm water
CV-ketel
Verwarmingssysteem
Centrale verwarming
Gashaard
Vloerverwarming (gedeeltelijk)
Ventilatie methode
Mechanische ventilatie
Natuurlijke ventilatie
Keukenvoorzieningen
Inbouwapparatuur
Badkamervoorzieningen
Douche
Toilet
Wastafelmeubel
Parkeergelegenheid
Garage
Heeft een alarm
Ja
Heeft kabel-tv
Ja
Heeft een rookkanaal
Ja
Tuin aanwezig
Ja
Heeft een garage
Ja
Telefoonaansluiting aanwezig
Ja
Beschikt over een internetverbinding
Ja
Heeft een dakraam
Ja
Heeft ventilatie
Ja

Kadastrale gegevens

Kadastrale aanduiding
Terheijden G 4564
Perceeloppervlakte
564 m²
Eigendomsituatie
Eigen grond

Brochure(s) en overige bijlagen

BROCHURE Koningsveld 29 Terheijden.pdf Download