Verkocht onder voorbehoud:Molenstraat 14, 4844 AN Terheijden - Foto
Verkocht onder voorbehoud
+35

Molenstraat 14 4844 AN Terheijden € 315.000,- k.k.

  • Woonhuis
  • 3 kamers
  • 2 slaapkamers
  • 1 badkamers
  • Bouwjaar 1900
  • 173 m² perceeloppervlakte
  • 86 m² gebruiksoppervlakte
  • D Energielabel D
Vrijstaande en goed onderhouden woning met een achtertuin grenzend aan de Kleine Schans van Terheijden

Beschrijving

Deze gezellige vrijstaande en goed onderhouden woning met een achtertuin grenzend aan de Kleine Schans van Terheijden ligt op een perceel grond van 173 m² en heeft een woonoppervlakte van ca. 86 m².
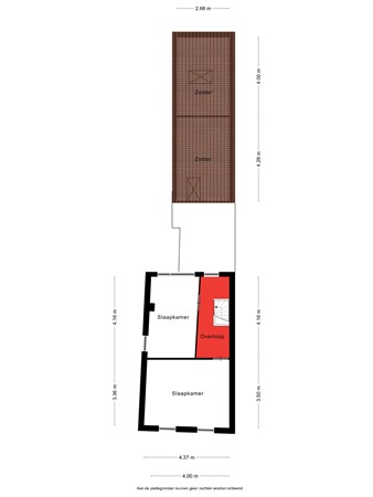
Op de begane grond zijn een hal, een woonkamer met doorgang naar de keuken, een portaal, toilet en de bijkeuken. Via de bijkeuken kom je in de badkamer.
De eerste verdieping bereik je via een steile vaste trap. Vanaf op de overloop kom je in de twee slaapkamers.
In de achtertuin zijn een berging en een overkapping. Vanuit deze achtertuin heb je blijvend vrij uitzicht in de richting van de historische Schans van Terheijden.

Indeling

Entree/hal met meterkast, trapopgang naar de verdiepingsvloer en toegangsdeur naar de woonkamer.
In de doorzonkamer van ca. 7.60 x 4.40m. is een houtkachel toegang tot een kelder-/trapkast en doorgang naar de half open keuken.
De keuken heeft aan de raamzijde een rvs spoelbak met werkblad en onderkastjes en aan de muurzijde een aanrechtblad met een keramische vier pits kookplaat, afzuigkap, een combi magnetron en diverse onder en bovenkastjes. Via een deur in de keuken kom je in een portaal. Via dit portaal kun je of naar de achtertuin, het toilet of de bijkeuken. In de bijkeuken staan opgesteld: de CV-combiketel, de wasmachine, de wasdroger, koel- en diepvries en een vaste schuifkast. Via de bijkeuken kom je in de badkamer welke voorzien is van een douche en een wastafelmeubel. Een luik en vlizotrap in de bijkeuken geven toegang tot een ruime bergzolder.
De berging van ca. 11 m² grenst aan de achterzijde van de bijkeuken en is via de tuin te bereiken. Ook in deze berging is een luik en vlizotrap welke toegang geven tot een bergzolder.

Eerste verdieping

Via de trap in de hal kom je op de overloop van de verdiepingsvloer met toegang tot twee slaapkamers. De slaapkamer aan de voorzijde van de woning heeft een oppervlakte van ca. 14.5 m² is voorzien van dubbel glas en heeft een voorzetwand. De slaapkamer aan de achterzijde van de woning heeft een oppervlakte van ca. 10 m² is voorzien van dubbel glas.

Tuin

Vanuit deze goed onderhouden, op het zuidwesten gelegen, achtertuin heb je blijvend vrij uitzicht op de Kleine Schans. De gezellige achtertuin biedt veel privacy, hier is een overkapping aanwezig waaronder je lekker kunt relaxen of in alle vrijheid van een barbecue kunt genieten. De achtertuin is via een poort aan de oostzijde van de woning en/of via de deur in het portaal van de woning te bereiken.

Bijzonderheden

BIJZONDERHEDEN
- Gezellige vrijstaande woning met twee slaapkamers
- Voorzien van dubbel glas
- Goed onderhouden woning
- Fraaie ligging met tuin aan de Kleine Schans van Terheijden
- Dorpscentrum op loop- en fietsafstand gelegen
- Wandelgebied ‘om de hoek’

- de afmetingen van de kamers/ruimten zijn op de platte gronden terug te vinden.

INTERESSE?
Wij nodigen u van harte uit om deze woning in Terheijden te komen bezichtigen.
Bel voor een vrijblijvende afspraak 076-593 3134. We geven graag de mogelijkheden door.

Naast deze gezellige woning heeft het dorp Terheijden heel veel te bieden:
- Op loop-/ fietsafstand zijn onder meer het dorpscentrum met goede winkel- en verzorgingsfaciliteiten, een basisschool, het openlucht zwembad, horecagelegenheden, de jachthaven en wandelgebied langs de Mark en de Schans. De bourgondische stad Breda ligt op slechts ca. 20 fietsminuten afstand en binnen 10 autominuten bereik je de snelwegen A59, A16 en A27.

ALGEMEEN
- Bij een verkoop wordt als basis gebruik gemaakt van het model van de Vastgoed Nederland koopovereenkomst, vastgesteld door de Nederlandse brancheorganisatie voor makelaars, de NVM en Vereniging Eigen Huis.
- In deze koopovereenkomst wordt standaard de verplichting tot het storten van een waarborgsom of het stellen van een bankgarantie door de koper ter grootte van 10% van de koopsom opgenomen.
- Een koopovereenkomst komt uitsluitend tot stand onder de opschortende voorwaarde dat zowel verkoper als koper de koopovereenkomst ondertekenen. Partijen kunnen derhalve noch aan een mondelinge overeenkomst, noch aan een schriftelijke bevestiging daarvan, rechten ontlenen.
- Deze vrijblijvende informatie is door Reimus Makelaardij met de nodige zorgvuldigheid samengesteld. Alle opgegeven maten en oppervlakten zijn indicatief en kunnen desgewenst door koper worden gecontroleerd.
- Afhankelijk van het bouwjaar wordt een koopovereenkomst, welke gehanteerd wordt door Reimus Makelaardij, standaard voorzien van een asbestclausule en ouderdomsclausule c.q. ‘as is where is’ clausule.
- Reimus Makelaardij wijst hiermee koper, in het kader van zijn onderzoeksplicht, op de mogelijkheid van het laten uitvoeren van een bouwkundige keuring en/of het inschakelen van een aankoopmakelaar.
- Door Reimus Makelaardij wordt geen enkele aansprakelijkheid aanvaard voor enige onvolledigheid, onjuistheid w.o. tekeningen, jaartallen, schaalaanduidingen oppervlaktematen of anderszins, dan wel de gevolgen daarvan.

Kaart

Kenmerken

Overdracht

Referentienummer
05738
Vraagprijs
€ 315.000,- k.k.
Inrichting
Niet gestoffeerd
Inrichting
Niet gemeubileerd
Status
Verkocht onder voorbehoud
Aanvaarding
In overleg
Aangeboden sinds
Woensdag 10 september 2025
Laatste wijziging
Zaterdag 4 oktober 2025

Bouw

Type object
Woonhuis, eengezinswoning, vrijstaande woning
Soort bouw
Bestaande bouw
Bouwperiode
1900
Dakbedekking
Bitumen
Type dak
Platdak
Isolatievormen
Dubbel glas

Oppervlaktes en inhoud

Perceeloppervlakte
173 m²
Woonoppervlakte
86 m²
Inhoud
396 m³
Oppervlakte overige inpandige ruimten
10,7 m²
Oppervlakte gebouwgebonden buitenruimte
9 m²

Indeling

Aantal bouwlagen
2
Aantal kamers
3 (waarvan 2 slaapkamers)
Aantal badkamers
1 (en 1 apart toilet)

Tuin

Type
Achtertuin
Hoofdtuin
Ja
Oriëntering
Zuid-west
Heeft een achterom
Ja
Staat
Goed onderhouden

Energieverbruik

Energielabel
D
Energie-index
2,1

CV ketel

CV ketel
Nefit
Warmtebron
Gas
Bouwjaar
2020
Combiketel
Ja
Eigendom
Eigendom

Uitrusting

Warm water
CV-ketel
Verwarmingssysteem
Centrale verwarming
Houtkachel
Badkamervoorzieningen
Douche
Wastafel
Heeft kabel-tv
Ja
Tuin aanwezig
Ja
Telefoonaansluiting aanwezig
Ja
Beschikt over een internetverbinding
Ja

Kadastrale gegevens

Kadastrale aanduiding
Terheijden G 4968
Perceeloppervlakte
43 m²
Kadastrale aanduiding
Terheijden G 1467
Perceeloppervlakte
130 m²

Brochure(s) en overige bijlagen

Molenstraat 14, 4844 AN TERHEIJDEN (1) Download