Verkocht:Liesveld 23, 4844 RB Terheijden - Foto
Verkocht
+36

Liesveld 23 4844 RB Terheijden

  • Woonhuis
  • 6 kamers
  • 5 slaapkamers
  • 1 badkamer
  • Bouwjaar 1978
  • 156 m² perceeloppervlakte
  • 120 m² gebruiksoppervlakte
  • B Energielabel B
Ideaal gelegen tussenwoning met aanpandige berging en maar liefst 5 slaapkamers, gelegen in een kindvriendelijke woonwijk met veel groen en op loopafstand van de centrumvoorzieningen.

Beschrijving

Ideaal gelegen tussenwoning met aanpandige berging en maar liefst 5 slaapkamers, gelegen in een kindvriendelijke woonwijk met veel groen en op loopafstand van de centrumvoorzieningen. Met een woonoppervlakte van circa 120 m2 heeft deze woning een gezellige woonkamer, een dichte keuken, 5 slaapkamers, een badkamer en veel bergruimte. De woning is gebouwd in 1978 en is voorzien van muur-, en dakisolatie, deels houten en deels kunststof kozijnen grotendeels met HR++ glas en heeft energielabel B. De woning wordt verwarmd middels een c.v. combiketel (Remeha Avanta 2013) en radiatoren. Het platte dak is vernieuwd in 2020. Het buitenschilderwerk dateert van 2023. De privacy biedende achtertuin is gelegen op het zuidzuidoosten en grenst aan de achterzijde aan een gemeenteplantsoen met waterloop, speelvelden en fiets-/wandelpaden.

Naast deze bijzonderheden en fantastische ligging van deze gezellige woning vind je in Terheijden, voor zowel jong als oud, goede winkel- en verzorgingsfaciliteiten, drie basisscholen, het openlucht zwembad, horecagelegenheden, een jachthaven (met fietspontje), meerdere sport- en recreatiemogelijkheden en wandel- en fietsmogelijkheden langs de Mark, de Schans, door het polderlandschap of de nabij gelegen bossen. Bovendien zijn zowel de bourgondische stad Breda als Oosterhout binnen ‘handbereik’, waardoor je kunt genieten van het beste van twee werelden: rustig en comfortabel wonen in een landelijke omgeving met alle gemakken van de stad binnen handbereik. Wil je het verderop zoeken dan liggen de A59, A16 en de A27 slecht op enkele autominuten afstand van de woning.

Indeling

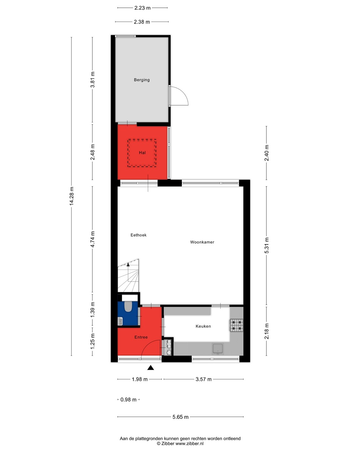
Entree/hal met meterkast en toegang tot de toiletruimte, keuken en woonkamer. De moderne, gedeeltelijk betegelde toiletruimte is vernieuwd in 2020 en is voorzien van een wandcloset en een fonteintje.
Gezellige woonkamer met laminaatvloer en open houten trap naar de eerste verdieping. Vanuit de woonkamer toegang tot de keuken en een tochtportaal.
De keuken is gelegen aan de voorzijde en is afgewerkt met een vinylvloer en gedeeltelijk betegelde wanden. De keuken is voorzien van een L-vormige keukeninrichting en een kastenwand (beide met composietaanrechtblad), een rvs spoelbak, rvs afzuigkap, 4-pits gaskookplaat, oven, koelkast, vaatwasser en diverse onder-, bovenkasten en lades.
Via dubbele openslaande deuren toegang tot het tussenportaal. Het portaal is voorzien van een laminaatvloer, een lichtkoepel, een raam en loopdeur naar de berging.

Eerste verdieping

De overloop biedt toegang tot drie slaapkamers, de badkamer en middels een vaste trap toegang tot de tweede verdieping.
Slaapkamer I, de master bedroom, is gelegen aan de voorzijde en is afgewerkt met een laminaatvloer en stucwerk wanden en -plafond.
Slaapkamer II is gelegen aan de achterzijde, heeft een vaste kast met Louvre deuren en is afgewerkt met een kurkvloer en behang wanden.
Slaapkamer III is eveneens gelegen aan de achterzijde en is afgewerkt met een kurkvloer en deels hout en deels behang wanden.
De ruime badkamer is grotendeels betegeld en voorzien van een ligbad met douchescherm, duoblok toilet, wastafel, radiator, aansluitingen ten behoeve van de wasapparatuur en een raam voor natuurlijke ventilatie en daglichttoetreding. De badkamer dient gemoderniseerd te worden.

Tweede verdieping

Overloop met bergruimte achter de knieschotten en toegang tot twee slaapkamers.
Slaapkamer IV is afgewerkt met een vinylvloer, geschilderde wanden en een houten schroten plafond.
Slaapkamer V heeft spachtelputz wanden, deels houten plafondafwerking en bergruimte achter de knieschotten. Hier bevindt zich tevens de opstelplaats van de c.v. combiketel (Remeha Avanta 2013).

Tuin

De zonnige, onderhoudsvriendelijke en privacy biedende achtertuin (ca. 14,50 x 6 m.) is voorzien van sierbestrating, diverse borders met meerjarige beplanting en een groot terras, grenzend aan de achtergevel met een hand bedienbaar zonnescherm. Aan de achterzijde van de tuin een poort naar de achtergelegen brandgang met aansluitend een speelveld en fiets-/wandelpaden.
De aanpandige berging is voorzien van elektra en is bereikbaar vanuit de tuin en vanuit het achterportaal van de woning.

Bijzonderheden

- ideaal gelegen tussenwoning met berging;
- 5 slaapkamers;
- voorzijde houten kozijnen, achterzijde kunststof kozijnen;
- grotendeels voorzien van HR++ glas;
- platdak vernieuwd in 2020;
- toiletruimte vernieuwd in 2021;
- buitenschilderwerk 2023;
- privacy biedende achtertuin op het zuidoosten;
- speelvelden en fiets-/wandelpaden grenzend aan de achtertuin;
- ideale gezinswoning!

AFMETINGEN:
De afmetingen van de kamers/ruimten zijn indicatief en op de plattegronden terug te vinden.

TERHEIJDEN EN OMGEVING
Naast deze bijzonderheden en fantastische ligging van deze gezellige woning vind je in Terheijden, voor zowel jong als oud, goede winkel- en verzorgingsfaciliteiten, drie basisscholen, het openlucht zwembad, horecagelegenheden, een jachthaven (met fietspontje), meerdere sport- en recreatiemogelijkheden en wandel- en fietsmogelijkheden langs de Mark, de Schans, door het polderlandschap of de nabij gelegen bossen.
Bovendien zijn zowel de bourgondische stad Breda als Oosterhout binnen ‘handbereik’, waardoor je kunt genieten van het beste van twee werelden: rustig en comfortabel wonen in een landelijke omgeving met alle gemakken van de stad binnen handbereik. Wil je het verderop zoeken dan liggen de A59, A16 en de A27 slecht op enkele autominuten afstand van de woning.

HEB JE INTERESSE IN DEZE WONING?
Aarzel niet langer en maak een afspraak voor een bezichtiging. Dit is een unieke kans om je droom waar te maken!
Bel voor een vrijblijvende afspraak 076-593 3134. We geven graag de mogelijkheden door.

ALGEMEEN
- Bij een verkoop wordt als basis gebruik gemaakt van het model van de Vastgoed Nederland koopovereenkomst mede vastgesteld door de Nederlandse brancheorganisatie Voor makelaars, de NVM en Vereniging Eigen Huis.
- In deze koopovereenkomst wordt standaard de verplichting tot het storten van een waarborgsom of het stellen van een bankgarantie door de koper ter grootte van 10% van de koopsom opgenomen.
- Een koopovereenkomst komt uitsluitend tot stand onder de opschortende voorwaarde dat zowel verkoper als koper de koopovereenkomst ondertekenen. Partijen kunnen derhalve noch aan een mondelinge overeenkomst, noch aan een schriftelijke bevestiging daarvan, rechten ontlenen.
- Deze vrijblijvende informatie is door Reimus Makelaardij met de nodige zorgvuldigheid samengesteld. Alle opgegeven maten en oppervlakten zijn indicatief en kunnen desgewenst door koper worden gecontroleerd.
- Afhankelijk van het bouwjaar wordt een koopovereenkomst, welke gehanteerd wordt door Reimus Makelaardij, standaard voorzien van een asbestclausule en ouderdomsclausule c.q. ‘as is where is’ clausule.
- Reimus Makelaardij wijst hiermee koper, in het kader van zijn onderzoeksplicht, op de mogelijkheid van het laten uitvoeren van een bouwkundige keuring en/of het inschakelen van een aankoopmakelaar.
- Door Reimus Makelaardij wordt geen enkele aansprakelijkheid aanvaard voor enige onvolledigheid, onjuistheid w.o. tekeningen, jaartallen, schaalaanduidingen oppervlaktematen of anderszins, dan wel de gevolgen daarvan.
- Afhankelijk van het bouwjaar wordt een koopovereenkomst, welke gehanteerd wordt door Reimus Makelaardij, standaard voorzien van een asbestclausule en ouderdomsclausule c.q. ‘as is where is’ clausule.
- Reimus Makelaardij wijst hiermee koper, in het kader van zijn onderzoeksplicht, op de mogelijkheid van het laten uitvoeren van een bouwkundige keuring en/of het inschakelen van een aankoopmakelaar.
- Door Reimus Makelaardij wordt geen enkele aansprakelijkheid aanvaard voor enige onvolledigheid, onjuistheid w.o. tekeningen, jaartallen, schaalaanduidingen oppervlaktematen of anderszins, dan wel de gevolgen daarvan.

Kaart

Kenmerken

Overdracht

Referentienummer
05752
Vraagprijs
€ 390.000,- k.k.
Status
Verkocht
Aanvaarding
In overleg
Aangeboden sinds
Zondag 1 februari 2026
Laatste wijziging
Woensdag 4 maart 2026

Bouw

Type object
Woonhuis, eengezinswoning, tussenwoning
Soort bouw
Bestaande bouw
Bouwperiode
1978
Dakbedekking
Bitumen
Dakpannen
Type dak
Zadeldak
Isolatievormen
Dakisolatie
Grotendeels dubbel glas
HR-glas
Muurisolatie
Spouwmuren

Oppervlaktes en inhoud

Perceeloppervlakte
156 m²
Woonoppervlakte
120 m²
Inhoud
455 m³
Oppervlakte overige inpandige ruimten
9 m²

Indeling

Aantal bouwlagen
3
Aantal kamers
6 (waarvan 5 slaapkamers)
Aantal badkamers
1 (en 1 apart toilet)

Locatie

Ligging
Aan rustige weg
In woonwijk
Nabij school

Tuin

Type
Achtertuin
Hoofdtuin
Ja
Oriëntering
Zuiden
Heeft een achterom
Ja
Staat
Goed onderhouden

Energieverbruik

Energielabel
B

CV ketel

CV ketel
Remeha Avanta
Warmtebron
Gas
Bouwjaar
2013
Combiketel
Ja
Eigendom
Eigendom

Uitrusting

Warm water
CV-ketel
Verwarmingssysteem
Centrale verwarming
Ventilatie methode
Mechanische ventilatie
Keukenvoorzieningen
Inbouwapparatuur
Heeft kabel-tv
Ja
Glasvezelaansluiting aanwezig
Ja
Tuin aanwezig
Ja
Beschikt over een internetverbinding
Ja
Heeft schuur/berging
Ja
Heeft zonwering
Ja
Heeft ventilatie
Ja

Kadastrale gegevens

Kadastrale aanduiding
Terheijden G 3426
Perceeloppervlakte
156 m²
Omvang
Geheel perceel
Eigendomsituatie
Eigen grond

Brochure(s) en overige bijlagen

Liesveld 23, 4844 RB TERHEIJDEN (1) Download