Verkocht:Raadhuisstraat 5A, 4927 AM Hooge Zwaluwe - Foto
Verkocht
+49

Raadhuisstraat 5A 4927 AM Hooge Zwaluwe

  • Appartement
  • 3 kamers
  • 2 slaapkamers
  • 1 badkamers
  • Bouwjaar 2001
  • 122 m² gebruiksoppervlakte
  • B Energielabel B
INSTAPKLAAR ENERGIEZUINIG TWEEKAMERAPPARTEMENT MET EXTRA VERDIEPING

Beschrijving

Dit bijzondere tweekamerappartement in residentie ’t Raadhuis in het centrum van Hooge Zwaluwe biedt niet alleen comfort, maar ook een extra verdieping met volop mogelijkheden voor een tweede slaapkamer, thuiskantoor of hobbykamer.
RUIMTE EN LICHT
Het appartement ligt op de eerste verdieping en heeft een ruime eigen (privé) entree met trapopgang. De sfeervolle woonkamer (ca. 53 m²) is voorzien van een lichte massief houten vloer en een moderne open keuken. Dankzij de grote ramen geniet je van veel natuurlijk licht. Vanuit de woonkamer heb je direct toegang tot de loggia (ca. 5,7 m²), een fijne plek om buiten te zitten.
SLAAPKAMER EN BADKAMER
De royale slaapkamer (ca. 15 m²) is comfortabel ingericht en grenst direct aan de moderne badkamer met inloopdouche, wastafelmeubel en handdoekenradiator.
EXTRA VERDIEPING MET MOGELIJKHEDEN
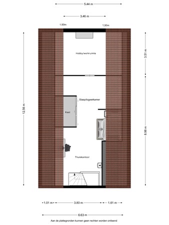
Op de tweede verdieping bevindt zich een ruime zolder van 42 m². Deze multifunctionele ruimte is ideaal als tweede slaapkamer, thuiskantoor, hobbyruimte of extra opslag.
Dit appartement is goed onderhouden en energiezuinig, voorzien van dubbel glas, 20 zonnepanelen en energielabel B.

WIL JE DIT BIJZONDERE APPARTEMENT ZELF ERVAREN? MAAK EEN AFSPRAAK EN KOM KIJKEN!

Indeling

VEILIGE ENTREE EN HANDIGE BERGING
Bij en entree heb je een video-intercom en beveiligde voordeur. In de ruime privé hal bevindt zich een afsluitbare berging, ideaal voor fietsen of extra opslag. Via de beveiligde achterdeur heb je direct toegang tot de achterzijde van het complex perfect om b.v. boodschappen in- en uit te laden.
Via de brede hardhouten trap kom je op de overloop van de woonverdieping.

Eerste verdieping

RUIME OVERLOOP MET VIDE
Een brede hardhouten trap brengt je naar de woonverdieping. Hier kom je uit op een lichte overloop met vide, die toegang biedt tot de bijkeuken en het woongedeelte van het appartement. De hele verdieping is voorzien van een massief houten vloer en grote raampartijen die zorgen voor een prettige lichtinval.
PRAKTISCHE BIJKEUKEN
In de bijkeuken vind je aansluitingen voor een wasmachine en droger, met genoeg ruimte voor een extra koel-vriescombinatie.
SLIM INGEDEELD APPARTEMENT
Vanuit de gang heb je toegang tot alle ruimtes:
## TOILET: Modern betegeld, met wandcloset en fonteintje.
## SLAAPKAMER (ca. 15 m²): Ruime kamer met vloerbedekking, kledingkast en een schuifdeur naar de badkamer.
## BADKAMER: Nette betegelde ruimte met inloopdouche, wastafelmeubel en handdoekenradiator.
## WOONKAMER: Sfeervolle ruimte met airco (verwarmen & koelen), een open keuken en eetgedeelte (ca. 10,6 m²). De kamer biedt uitzicht op het plein aan de voorzijde en aan de achterzijde op de straat en het polderlandschap.
## MODERNE OPEN KEUKEN:
De keuken heeft een praktische L-opstelling en is compleet uitgerust met:
** 4-pits inductiekookplaat met warmhoudzone
** Vaatwasser
** Dubbele RVS spoelbak met mengkraan
** Koelkast
** Inbouw-oven/magnetron
** Veel opbergruimte in onder- en bovenkastjes
GENIETEN IN DE LOGGIA
Via een schuifdeur bereik je de loggia, een heerlijke plek om 'buiten' te zitten. Dankzij het elektrische verwarmingselement kun je hier het hele jaar door comfortabel genieten van de frisse lucht. De loggia kun je afsluiten met een elektrisch rolluik.

Tweede verdieping

EXTRA VERDIEPING. MOGELIJKHEDEN OP DE ZOLDERVERDIEPING
Het grote pluspunt van dit appartement is de extra verdieping van ruim 42 m². Deze ruimte is perfect als tweede slaapkamer, thuiskantoor of hobbyruimte. De mogelijkheden zijn eindeloos!
WIL JE DIT VEELZIJDIGE APPARTEMENT ZELF ERVAREN? MAAK EEN AFSPRAAK EN KOM KIJKEN!

Balkon

GENIETEN IN DE LOGGIA
Via een schuifdeur bereik je de loggia, een heerlijke plek om buiten te zitten. Dankzij het elektrische verwarmingselement kun je hier het hele jaar door comfortabel genieten van de frisse lucht. De loggia kun je afsluiten met een elektrisch rolluik.

Bijzonderheden

WONEN IN HOOGE ZWALUWE:
DIT TWEEKAMERAPPARTEMENT MET EXTRA VERDIEPING IN HOOGE ZWALUWE BIEDT DE PERFECTE BALANS TUSSEN GEMAK, RUST, NATUUR EN BEREIKBAARHEID.
WIL JIJ HIER WONEN? ONTDEK DE MOGELIJKHEDEN!H
Hooge Zwaluwe is een charmant dorp in de gemeente Drimmelen, perfect voor wie op zoek is naar een tweekamerappartement in een rustige en groene omgeving. Hier geniet je van de rust van het platteland, met alle nodige voorzieningen binnen handbereik.
RUST, NATUUR EN ONTSPANNING
Het dorp wordt omringd door uitgestrekte landerijen en ligt vlak bij Nationaal Park De Biesbosch, een paradijs voor natuurliefhebbers. Of je nu graag wandelt, fietst of vaart, in deze omgeving kun je volop genieten van het buitenleven.
GEZELLIG DORPSLEVEN
Hooge Zwaluwe heeft een basisschool en een uniek restaurant in een voormalige kerk, wat bijdraagt aan de gemoedelijke sfeer. Voor winkels, supermarkten, middelbare scholen en sportverenigingen kun je terecht in de omliggende dorpen zoals Made, Wagenberg en Lage Zwaluwe.
CENTRALE LIGGING EN GOEDE BEREIKBAARHEID
Dankzij de gunstige ligging ben je binnen enkele minuten op de snelwegen A59, A27 en A16. Steden als Breda en Dordrecht zijn eenvoudig en snel te bereiken. Zo combineer je het beste van twee werelden: wonen in een rustige omgeving met alle belangrijke voorzieningen dichtbij.

ALGEMEEN
- Bij een verkoop wordt als basis gebruik gemaakt van het model van de VBO koopovereenkomst, vastgesteld door de Nederlandse brancheorganisatie voor makelaars, de Consumentenbond en Vereniging Eigen Huis.
- In deze koopovereenkomst wordt standaard de verplichting tot het storten van een waarborgsom of het stellen van een bankgarantie door de koper ter grootte van 10% van de koopsom opgenomen.
- Een koopovereenkomst komt uitsluitend tot stand onder de opschortende voorwaarde dat zowel verkoper als koper de koopovereenkomst ondertekenen. Partijen kunnen derhalve noch aan een mondelinge overeenkomst, noch aan een schriftelijke bevestiging daarvan, rechten ontlenen.
- Deze vrijblijvende informatie is door Reimus Makelaardij met de nodige zorgvuldigheid samengesteld. Alle opgegeven maten en oppervlakten zijn indicatief en kunnen desgewenst door koper worden gecontroleerd.
- Afhankelijk van het bouwjaar wordt een koopovereenkomst, welke gehanteerd wordt door Reimus Makelaardij, standaard voorzien van een asbestclausule en ouderdomsclausule c.q. ‘as is where is clausule’.
- Reimus Makelaardij wijst hiermee koper, in het kader van zijn onderzoeksplicht, op de mogelijkheid van het laten uitvoeren van een bouwkundige keuring.
- Door Reimus Makelaardij wordt geen enkele aansprakelijkheid aanvaard voor enige onvolledigheid, onjuistheid w.o. tekeningen, jaartallen, schaalaanduidingen oppervlaktematen of anderszins, dan wel de gevolgen daarvan.

HIGHLIGHTS:
• Instapklaar en goed onderhouden appartement
• Rustig gelegen op eerste verdieping
• Multifunctionele zolder (42 m²) voor: thuiskantoor; slaapkamer; hobby- werkkamer
• Bouwjaar 2001
• Grenst aan het historische gemeentehuis van Hooge Zwaluwe
• Eigen ingang/entree
• Deurbel met intercom en video
• Eigen trappenhuis met trapopgang en toegang tot berging
• Berging met ‘achteruitgang’
• Voor- en achterdeur bouwkundige beveiligd
• Overloop met vide
• Energie zuinig (Energielabel ‘B’)
• Aluminium gecoate kozijnen v.v. dubbelglas
• Veel lichtinval a.g.v. de vele ramen aan weerszijde van het appartement
• 20 zonnepanelen
• Oplaadpunt voor elektrische auto
• Airco (zowel koelen als verwarmen)
• Loggia (zuid west gelegen)
• Open keuken
• Royale slaapkamer met kledingkast
• Ruime badkamer met inloopdouche en wastafelmeubel

## bij de foto's van de zolderverdieping zijn 3 AI bewerkte foto's toegevoegd!
## de afmetingen van de kamers/ruimten zijn op de plattegronden terug te vinden.

Kaart

Kenmerken

Overdracht

Referentienummer
05684
Vraagprijs
€ 325.000,- k.k.
Servicekosten
€ 250,-
Inrichting
Niet gestoffeerd
Inrichting
Niet gemeubileerd
Status
Verkocht
Aanvaarding
In overleg
Aangeboden sinds
Dinsdag 25 maart 2025
Laatste wijziging
Dinsdag 10 juni 2025

Bouw

Type object
Appartement, bovenwoning
Woonlaag
2e woonlaag
Soort bouw
Bestaande bouw
Toegankelijkheid
Senioren
Bouwperiode
2001
Dakbedekking
Dakpannen
Type dak
Platdak
Isolatievormen
Dakisolatie
Dubbel glas
Spouwmuren

Oppervlaktes en inhoud

Woonoppervlakte
122 m²
Inhoud
543 m³
Oppervlakte overige inpandige ruimten
42 m²

Indeling

Aantal bouwlagen
3
Aantal kamers
3 (waarvan 2 slaapkamers)
Aantal badkamers
1 (en 1 apart toilet)

Locatie

Ligging
Aan rustige weg
Beschutte ligging
Dichtbij openbaar vervoer
In centrum
Vrij uitzicht

Energieverbruik

Energielabel
B

CV ketel

CV ketel
Nefit HR CV combiketel
Warmtebron
Gas
Bouwjaar
2022
Combiketel
Ja
Eigendom
Eigendom

Uitrusting

Warm water
CV-ketel
Verwarmingssysteem
Airconditioning
Centrale verwarming
Badkamervoorzieningen
Inloopdouche
Wastafelmeubel
Parkeergelegenheid
Parkeerplaats
Heeft airco
Ja
Heeft kabel-tv
Ja
Telefoonaansluiting aanwezig
Ja
Beschikt over een internetverbinding
Ja
Heeft rolluiken
Ja
Heeft een dakraam
Ja
Heeft een schuifpui
Ja
Heeft zonnepanelen
Ja

Vereniging van Eigenaren

Ingeschreven bij de KvK
Ja
Jaarlijkse vergadering
Ja
Periodieke bijdrage
Ja
Reservefonds
Ja
Meer jaren onderhoudsplan
Ja
Opstal verzekering
Ja

Kadastrale gegevens

Kadastrale aanduiding
Hooge en Lage Zwaluwe I 3420
Omvang
Appartementsrecht of complex
Eigendomsituatie
Zie akte

Brochure(s) en overige bijlagen

1-BROCHURE# Raadhuisstraat 5A HZ-25-03-25.pdf Download